ลิฟท์ขนของ Mactech 1 ตัน
เจาะลึกนวัตกรรม ลิฟท์ขนของ Mactech 1 ตัน: โซลูชันอัจฉริยะเพื่อการขนย้ายในอุตสาหกรรมยุคใหม่
ในระบบการจัดการคลังสินค้าและโรงงานอุตสาหกรรม การขนย้ายสินค้าในแนวดิ่งถือเป็นกระบวนการสำคัญที่ส่งผลต่อต้นทุนและเวลา บริษัท เอ็กตร้า แมคเทค จำกัด (สำนักงานใหญ่) ผู้เชี่ยวชาญที่มีประสบการณ์ยาวนานกว่า 15 ปี ได้พัฒนาและนำเสนอ ลิฟท์ขนของ Mactech ขนาด 1 ตัน ซึ่งถูกออกแบบมาเพื่อทำลายข้อจำกัดด้านการขนย้าย เพิ่มความปลอดภัย และยกระดับมาตรฐานการทำงานตามหลักวิศวกรรมสากล
ลิฟท์รุ่นนี้ไม่ใช่เพียงแค่เครื่องจักรยกของ แต่เป็นระบบวิศวกรรมที่รวมเอาเทคโนโลยีไฮดรอลิค มอเตอร์ไฟฟ้ากำลังสูง และระบบควบคุมความปลอดภัยอัจฉริยะเข้าไว้ด้วยกัน เพื่อตอบโจทย์โรงงาน อู่ซ่อมรถ คลังสินค้า และอุตสาหกรรมทุกประเภท

📊 ข้อมูลทางเทคนิคเชิงลึก (Technical Specifications)
เพื่อให้ผู้ประกอบการและวิศวกรโรงงานสามารถวิเคราะห์ประสิทธิภาพการใช้งานได้ชัดเจน ตารางด้านล่างนี้คือข้อมูลสเปคมาตรฐานของ ลิฟท์ขนของ Mactech 1 ตัน:
| หัวข้อรายละเอียด (Description) | ข้อมูลจำเพาะ (Specifications) |
| ประเภทลิฟท์ (Type) | ลิฟท์ขนสินค้า 4 เสา ระบบไฮดรอลิค |
| ความสามารถในการรับน้ำหนัก (Payload) | 1,000 กิโลกรัม (1 ตัน) |
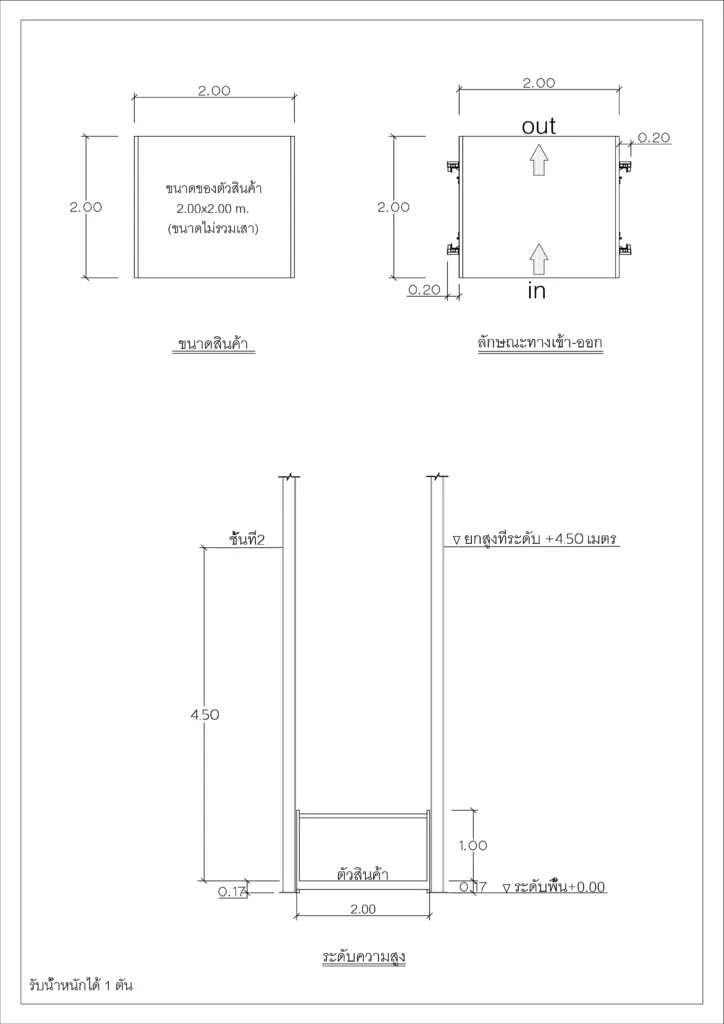
| ความสูงในการยก (Lift Height) | ไม่น้อยกว่า 4.5 เมตร |
| ขนาดแพลตฟอร์ม (Platform Size) | กว้าง 2.0 เมตร x ยาว 2.0 เมตร |
| ระดับต่ำสุดของแพลตฟอร์ม (Min Height) | 150 มิลลิเมตร |
| ความสูงรั้วกั้น (Fence Height) | 1.0 เมตร (พร้อมตะแกรงตาข่ายกันตก 4 ด้าน) |
| ระบบขับเคลื่อน (Drive System) | มอเตอร์ไฟฟ้า 5 HP (แรงม้า) / ไฟ 380V |
| ระบบควบคุม (Control System) | รีโมทคอนโทรล + กล่องคอนโทรล 2 จุด (ชั้น 1 และ 2) |
| ระบบความปลอดภัย (Safety) | Safety Hydraulics, Overload Sensor, Door Interlock |
🏗️ วิศวกรรมและการออกแบบเพื่อความยั่งยืน
1. ระบบไฮดรอลิคและขุมพลังมอเตอร์ 5 HP ⚡
ลิฟท์ขนของ Mactech ใช้ระบบขับเคลื่อนด้วย มอเตอร์ไฟฟ้าขนาด 5 แรงม้า (HP) รองรับแรงดันไฟฟ้า 380V ซึ่งเป็นกำลังไฟระดับอุตสาหกรรมที่ให้แรงบิดสม่ำเสมอ ระบบไฮดรอลิคถูกออกแบบมาให้มีการเคลื่อนที่ที่นุ่มนวล (Smooth Transition) ลดการสั่นสะเทือนที่อาจส่งผลกระทบต่อสินค้าที่ละเอียดอ่อน
2. แพลตฟอร์มขนาดใหญ่และการจัดการพื้นที่ 📐
ด้วยขนาดพื้นที่ใช้งาน 2 x 2 เมตร ทำให้สามารถวางพาเลทมาตรฐานได้พร้อมกัน หรือขนย้ายสินค้าที่มีรูปทรงยาวพิเศษได้สะดวก นอกจากนี้ ตัวแพลตฟอร์มยังมีความสูงต่ำสุดเพียง 150 มิลลิเมตร และมาพร้อมกับ ทางลาด (Ramp) เพื่อให้รถแฮนด์ลิฟท์ (Hand Lift) หรือรถเข็นสามารถเข็นสินค้าเข้าสู่ตัวลิฟท์ได้โดยไม่ต้องออกแรงยก
3. โครงสร้าง 4 เสา มั่นคงและปลอดภัย 🏛️
โครงสร้างแบบ 4 เสาช่วยกระจายแรงกดทับได้อย่างสมดุล ลดโอกาสการเอียงของแพลตฟอร์มเมื่อรับน้ำหนักที่กระจายตัวไม่สม่ำเสมอ (Uneven Loading) ซึ่งถือเป็นหัวใจสำคัญของลิฟท์ขนของในเชิงอุตสาหกรรม
🛡️ ระบบความปลอดภัยมาตรฐานสากล (Comprehensive Safety Features)
ความปลอดภัยคือหัวใจหลักที่ Extra Mactech ให้ความสำคัญสูงสุด ลิฟท์รุ่นนี้จึงติดตั้งระบบเซฟตี้แบบซ้ำซ้อน (Redundancy Safety) เพื่อป้องกันอุบัติเหตุในทุกมิติ:
-
ระบบป้องกันประตูลิฟท์ (Door Interlock): ลิฟท์จะไม่ทำงานหากประตูยังปิดไม่สนิท เพื่อป้องกันสิ่งของหรือเจ้าหน้าที่ได้รับอันตราย
-
ระบบ Safety Hydraulics: ติดตั้งวาล์วพิเศษป้องกันลิฟท์ตกในกรณีที่เกิดเหตุสุดวิสัยเกี่ยวกับระบบสายไฮดรอลิค
-
ระบบป้องกันน้ำหนักเกิน (Overload Protection): ลิฟท์จะมีเซ็นเซอร์ตรวจวัดและแสดงค่า หากน้ำหนักเกิน 1 ตัน ระบบจะหยุดทำงานทันทีเพื่อถนอมโครงสร้างและมอเตอร์
-
ปุ่มหยุดฉุกเฉิน (Emergency Stop): ติดตั้งทั้งที่กล่องคอนโทรลชั้น 1, ชั้น 2 และในตู้คอนโทรลรวม เพื่อให้สามารถตัดระบบไฟได้ทันทีในภาวะฉุกเฉิน
-
ระบบแจ้งเตือน (Alarm & Light): ในขณะที่ลิฟท์กำลังเคลื่อนที่ จะมีสัญญาณไฟและเสียงเตือน เพื่อให้ผู้ที่อยู่บริเวณโดยรอบเพิ่มความระมัดระวัง
📈 ประโยชน์เชิงธุรกิจและ E-EAT (Expertise, Authoritativeness, Trustworthiness)
การลงทุนในลิฟท์ขนของ Mactech ไม่ใช่เพียงการซื้อเครื่องจักร แต่เป็นการลงทุนในความน่าเชื่อถือของธุรกิจคุณ:
-
การันตีโดยผู้เชี่ยวชาญ: ภายใต้การดูแลของ คุณอำนาจ มณีวรรณวรวุฒิ ที่มีความเชี่ยวชาญด้านเครื่องมือช่างและลิฟท์อุตสาหกรรม
-
มาตรฐานบริษัท: บริษัท เอ็กตร้า แมคเทค จำกัด จดทะเบียนถูกต้อง (ภ.พ.20) และดำเนินธุรกิจมานานกว่า 15 ปี มั่นใจได้ในเรื่องอะไหล่และการซ่อมบำรุง
-
ความคุ้มค่าทางการเงิน: เรามีบริการ ผ่อน 0% นาน 3 เดือน ช่วยให้ผู้ประกอบการบริหารกระแสเงินสดได้ดียิ่งขึ้น
-
บริการครบวงจร: ตั้งแต่การสำรวจพื้นที่หน้างาน ติดตั้งโดยทีมช่างที่มีประสบการณ์ ไปจนถึงการรับประกันสินค้า
ใช้ลิฟท์ยกสินค้า Cargo liftในการจัดการคลังสินค้า
ในยุคที่การแข่งขันทางธุรกิจมีความเข้มข้น การทำงานที่มีประสิทธิภาพสูงสุดจึงเป็นสิ่งสำคัญ การใช้ลิฟท์ขนของยกสินค้า Mactech จะช่วยให้กระบวนการจัดการคลังสินค้าเป็นไปอย่างราบรื่นและได้มาตรฐาน เนื่องจากลิฟท์ขนของสามารถ:
– **ลดเวลาในการขนส่งสินค้า**:
ด้วยความสามารถในการยกของที่รวดเร็วและง่ายดาย ทำให้ลดเวลาที่ใช้ในการขนส่งสินค้าในคลัง จึงสามารถบริหารเวลาเพื่อทำกิจกรรมอื่นๆ ได้
– **เพิ่มความปลอดภัยในการทำงาน**:
การใช้ลิฟท์ขนสินค้า สามารถลดความเสี่ยงของการบาดเจ็บที่เกิดจากการยกของหนักด้วยมือ รวมถึงลดอุบัติเหตุที่อาจเกิดขึ้นจากการยกของอย่างไม่ถูกต้อง
– **ประสิทธิภาพในการจัดเก็บสินค้า**:
ด้วยความสามารถในการยกของในระดับความสูงที่หลากหลาย ทำให้สามารถจัดเก็บสินค้าในพื้นที่จำกัดและเป็นระเบียบเรียบร้อย
ความสำคัญของการมีลิฟท์ขนสินค้าCargo lift ในคลังสินค้า
ในยุคที่การแข่งขันทางธุรกิจมีความเข้มข้นมากขึ้น การจัดการคลังสินค้าอย่างมีประสิทธิภาพกลายเป็นปัจจัยสำคัญในการเพิ่มความสามารถในการแข่งขันขององค์กร การขนย้ายสินค้าภายในคลังสินค้าเป็นงานที่ต้องใช้ความระมัดระวังและความรวดเร็วเพื่อให้การดำเนินงานเป็นไปอย่างราบรื่นและปลอดภัย การมีลิฟท์ขนของและลิฟท์ขนสินค้าเป็นอุปกรณ์ที่ขาดไม่ได้สำหรับคลังสินค้าที่ต้องการการจัดการที่มีประสิทธิภาพสูง มาดูกันว่าความสำคัญของลิฟท์ขนของและลิฟท์ขนสินค้ามีอะไรบ้าง
1. การเพิ่มประสิทธิภาพในการจัดการคลังสินค้า
ลิฟท์ขนสินค้าเป็นอุปกรณ์ที่ช่วยเพิ่มประสิทธิภาพในการขนย้ายสินค้าและวัสดุในคลังสินค้า ด้วยความสามารถในการยกสินค้าหนักได้อย่างง่ายดายและรวดเร็ว ลิฟท์ขนของช่วยลดเวลาที่ใช้ในการขนย้ายสินค้าในแนวดิ่ง ไม่ว่าจะเป็นการยกขึ้นไปยังชั้นบนสุดของคลังสินค้าหรือการนำสินค้าลงมาจากชั้นสูงสุด การมีลิฟท์ขนของช่วยให้การขนย้ายเป็นไปอย่างราบรื่นและไม่มีความล่าช้า
2. ความปลอดภัยในการทำงาน
การขนย้ายสินค้าหนักโดยใช้แรงงานมนุษย์มีความเสี่ยงสูงที่จะเกิดอุบัติเหตุ ไม่ว่าจะเป็นการบาดเจ็บจากการยกของหนักหรือการเกิดความเสียหายต่อสินค้า ลิฟท์ขนสินค้ามีบทบาทสำคัญในการลดความเสี่ยงเหล่านี้ โดยเฉพาะในคลังสินค้าที่ต้องขนย้ายสินค้าที่มีน้ำหนักมาก ลิฟท์ยกของช่วยลดความเสี่ยงในการเกิดอุบัติเหตุและเพิ่มความปลอดภัยในการทำงานของพนักงาน
3. การประหยัดเวลาและแรงงาน
ลิฟท์ขนของและลิฟท์ขนสินค้าช่วยลดความจำเป็นในการใช้แรงงานจำนวนมากในการขนย้ายสินค้า ด้วยความสามารถในการขนย้ายสินค้าที่มีน้ำหนักมากในครั้งเดียว ลิฟท์ขนของช่วยประหยัดเวลาและแรงงานในการขนย้ายสินค้า ซึ่งทำให้สามารถใช้พนักงานในการทำงานที่มีความซับซ้อนมากขึ้นและเพิ่มประสิทธิภาพในการดำเนินงานของคลังสินค้า
4. การเพิ่มพื้นที่ในการจัดเก็บสินค้า
การจัดเก็บสินค้าในคลังสินค้าที่มีลิฟท์ยกของและลิฟท์ขนสินค้าช่วยให้สามารถใช้พื้นที่แนวดิ่งได้อย่างเต็มที่ ด้วยความสามารถในการขนย้ายสินค้าไปยังชั้นสูงสุดของคลังสินค้าได้อย่างง่ายดาย ลิฟท์ขนของช่วยเพิ่มพื้นที่ในการจัดเก็บสินค้า ทำให้สามารถเก็บสินค้าได้มากขึ้นในพื้นที่จำกัด นอกจากนี้ยังช่วยให้การจัดระเบียบคลังสินค้าเป็นไปอย่างมีประสิทธิภาพ
5. การเพิ่มความยืดหยุ่นในการดำเนินงาน
ลิฟท์ยกของและลิฟท์ขนสินค้ามีความยืดหยุ่นในการใช้งานสูง สามารถใช้งานได้กับสินค้าหลากหลายประเภท ไม่ว่าจะเป็นสินค้าที่มีน้ำหนักเบาหรือน้ำหนักหนัก ลิฟท์ขนของสามารถปรับการทำงานให้เหมาะสมกับความต้องการของคลังสินค้าแต่ละแห่งได้อย่างมีประสิทธิภาพ นอกจากนี้ยังสามารถใช้ในการขนย้ายวัสดุและอุปกรณ์ในโรงงานอุตสาหกรรมหรืออาคารพาณิชย์อื่น ๆ ได้เช่นกัน
6. การลดต้นทุนในการดำเนินงาน
แม้ว่าการติดตั้งลิฟท์ขนของและลิฟท์ขนสินค้าจะมีค่าใช้จ่ายในการลงทุนเริ่มต้น แต่เมื่อมองในระยะยาว การมีลิฟท์ขนของช่วยลดต้นทุนในการดำเนินงานของคลังสินค้าอย่างมาก เนื่องจากช่วยลดค่าใช้จ่ายในการจ้างแรงงานในการขนย้ายสินค้า รวมถึงลดค่าใช้จ่ายในการซ่อมแซมและเปลี่ยนแปลงสินค้าที่เสียหายจากการขนย้ายที่ไม่ถูกวิธี ลิฟท์ขนของจึงเป็นการลงทุนที่คุ้มค่าและช่วยลดต้นทุนในระยะยาว
7. การตอบสนองความต้องการของลูกค้า
ในยุคที่ความต้องการของลูกค้าเปลี่ยนแปลงอย่างรวดเร็ว การมีลิฟท์ยกของช่วยให้คลังสินค้าสามารถตอบสนองความต้องการของลูกค้าได้อย่างรวดเร็วและมีประสิทธิภาพ ด้วยความสามารถในการขนย้ายสินค้าได้อย่างรวดเร็วและปลอดภัย ลิฟท์ขนของช่วยให้การจัดส่งสินค้าเป็นไปตามกำหนดเวลา เพิ่มความพึงพอใจให้กับลูกค้าและสร้างความน่าเชื่อถือให้กับองค์กร
การดูแลรักษาลิฟท์ยกของ Cargo Lift
แม้ว่าลิฟท์ขนสินค้า Cargo Liftจะเป็นอุปกรณ์ที่ทนทานและมีความแข็งแรงสูง แต่การดูแลรักษาและบำรุงรักษาอย่างถูกวิธีก็ยังเป็นสิ่งสำคัญเพื่อยืดอายุการใช้งานของลิฟท์ขนของ:
– **การตรวจสอบระบบไฮดรอลิค**:
ควรมีการตรวจสอบระบบไฮดรอลิคอย่างสม่ำเสมอเพื่อให้แน่ใจว่าระบบทำงานได้อย่างถูกต้องและไม่มีการรั่วซึม
– **การทำความสะอาดเสาและฐานตัวยก**:
ควรทำความสะอาดส่วนต่างๆ ของลิฟท์ขนของโดยเฉพาะเสาและฐานตัวยกเพื่อลดการสะสมของฝุ่นและสิ่งสกปรก
– **ตรวจสอบสภาพของสายเคเบิลและเชือก**:
ตรวจสอบสายเคเบิลและเชือกที่ใช้ในการยกของให้แน่ใจว่าไม่มีการสึกหรอหรือชำรุด
– **การหล่อลื่นชิ้นส่วนที่เคลื่อนไหว**:
ควรมีการหล่อลื่นชิ้นส่วนที่เคลื่อนไหวเพื่อให้การทำงานเป็นไปอย่างราบรื่นและลดการสึกหรอ
– **การทดสอบการยกของ**:
ทดสอบการยกของโดยใช้ของที่มีน้ำหนักเพื่อให้แน่ใจว่าลิฟท์ขนสินค้า Cargo Liftสามารถทำงานได้ตามปกติ
สรุปและการเลือกใช้ลิฟท์ยกของMactech
ลิฟท์ขนสินค้า Cargo Liftเป็นองค์ประกอบสำคัญในการเพิ่มประสิทธิภาพและความปลอดภัยในการทำงาน ไม่ว่าจะเป็นในคลังสินค้า โรงงานอุตสาหกรรม หรือธุรกิจทั่วไป ลิฟท์ขนของ Mactech เป็นตัวเลือกที่ดีเนื่องจากความสามารถในการยกของหนัก ขึ้นสูงได้หลายระดับ มีระบบไฮดรอลิคที่มีประสิทธิภาพ และการออกแบบที่ทนทาน
การที่ธุรกิจของคุณมีลิฟท์ยกของ Cargo Lift Mactech จะช่วยเสริมประสิทธิภาพในการทำงาน ลดเวลาในการขนส่ง เพิ่มความปลอดภัยในการทำงาน และสร้างความแม่นยำในการขนย้ายสินค้าอย่างมาก
สุดท้าย การดูแลรักษาลิฟท์ยกของอย่างถูกวิธีก็เป็นสิ่งที่ต้องให้ความสำคัญเพื่อให้สามารถใช้งานได้ยาวนานและมีประสิทธิภาพสูงสุด การตรวจสอบและบำรุงรักษาอย่างสม่ำเสมอจะช่วยให้ลิฟท์ยกของของคุณพร้อมใช้งานอยู่เสมอ
เลือกใช้ลิฟท์ขนสินค้า Cargo Lift เพื่อเพิ่มประสิทธิภาพและความปลอดภัยในการขนส่งและจัดเก็บสินค้าของคุณกันนะคะ.
❓ คำถามที่พบบ่อย (Q&A)
Q: ลิฟท์ขนของรุ่นนี้สามารถใช้ขนคนได้หรือไม่?
A: ลิฟท์รุ่นนี้ถูกออกแบบและคำนวณโครงสร้างมาเพื่อการ ขนสินค้า (Cargo Only) โดยเฉพาะ เพื่อความปลอดภัยสูงสุดตามกฎหมายควบคุมอาคารและมาตรฐานวิศวกรรม ไม่แนะนำให้ใช้ขนส่งบุคคล
Q: ระบบไฟ 380V จำเป็นหรือไม่สำหรับลิฟท์รุ่นนี้?
A: จำเป็นครับ เนื่องจากมอเตอร์ขนาด 5 HP ต้องการกำลังไฟที่เสถียรเพื่อยกน้ำหนัก 1 ตันได้อย่างมีประสิทธิภาพ การใช้ไฟ 380V ช่วยลดความร้อนสะสมในมอเตอร์และประหยัดพลังงานได้ดีกว่าในระยะยาว
Q: หากไฟฟ้าดับ ลิฟท์จะค้างอยู่กลางอากาศหรือไม่?
A: ระบบไฮดรอลิคของ Mactech มีระบบวาล์วล็อกตำแหน่งอัตโนมัติเมื่อไม่มีแรงดันไฟ ทำให้แพลตฟอร์มค้างอยู่ในระดับเดิมอย่างปลอดภัย ไม่ตกลงมา และสามารถปลดล็อกเพื่อลงสู่ชั้นล่างได้ด้วยระบบ Manual Safety
Q: ใช้ระยะเวลาในการติดตั้งนานเท่าไหร่?
A: ระยะเวลาขึ้นอยู่กับสภาพพื้นที่หน้างาน โดยปกติจะใช้เวลาประมาณ 7-14 วันทำการ โดยมีทีมช่างผู้เชี่ยวชาญของ Extra Mactech ควบคุมงานทุกขั้นตอน
🏢 บริการและช่องทางการติดต่อ
เราพร้อมเป็น “มิตรแท้คู่ศูนย์บริการและอุตสาหกรรม” ให้กับคุณ ด้วยบริการส่งสินค้าทั่วประเทศและทีมที่ปรึกษาการเปิดอู่หรือโรงงานใหม่
ที่ตั้ง: บริษัท เอ็กตร้า แมคเทค จำกัด (สำนักงานใหญ่) 16/2 หมู่ 8 ต.บางบัวทอง อ.บางบัวทอง จ.นนทบุรี 11110
เบอร์โทรศัพท์: 093-265-9961, 081-627-5912,02-997-5544
Line: @Extralub
Facebook: Extra Mactech
Website: www.extramactechtool.com


ความรู้เกี่ยวกับกฎหมายโรงงานฉบับใหม่








































































รีวิว
ยังไม่มีบทวิจารณ์